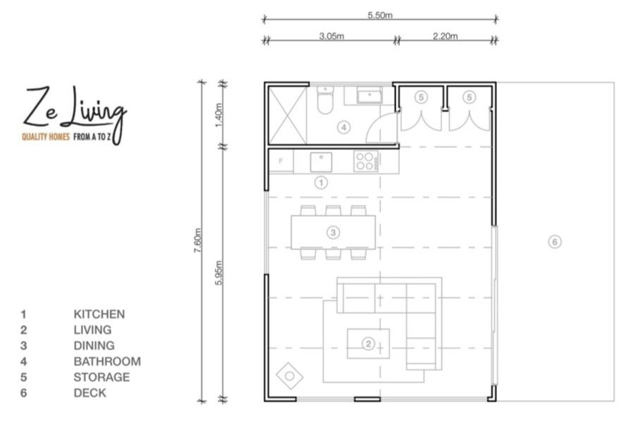
Sandy Retreat.

SQM: 42m2 (excluding deck area)

Discover Tranquility and coastal charm with ‘Sandy Retreat’, an architecturally designed plan perfect for coastal living. Embrace the soothing ambiance of sandy shores and coastal breezes in this thoughtfully crafted retreat, offering both relaxation and style. Explore the spacious layout and modern amenities designed to evoke a sense of seaside serenity. Experience the epitome of coastal living with Sandy Retreat - your oasis of comfort awaits.

    • Walls: Timber framed, plasterboard lined, paint finished.

    • Roof: Exposed timber truss roof, metal corrugate roofing, roof accessories to match.

    • Cladding: Vertical timber board and batten or selected vertical shiplap weatherboards.

    • Ceiling: Plasterboard lining, paint finished. Roof trusses to be exposed.

    • Floor: Engineered timber flooring.

    • Joinery: Aluminium framed, double-glazed.

    • Bathroom: Tiled floor, skirting and walk-in shower (level entry, glass shower screen, strip drain). Wall-mounted single vanity. Floor mounted toilet. Fixtures to be chosen by customer.

    • Kitchen: Standard timber cabinetry with engineered stone bench top. Kitchen sink, single fridge/freezer, induction stovetop, oven, dish drawer. Tile splash back. Kitchen fixtures to be chosen by customer.

    • Deck: Timber deck.

    • Accessories: Warmington Studio Wood Stove. Aluminium louvre canopy over deck.

Enquire Now
Next
Next

Sandy Retreat 2